x
发布需求
发布需求
咨询
咨询
聊天
聊天
意见反馈
意见反馈
返回顶部
返回顶部
*标题:
*内容描述:
首页 建筑规划及方案设计案例精选 保利青岛中央公园LOFT公寓式酒店项目

返回上一页

设计服务商: 上海邸幔建筑设计有限公司 去设计师主页 >>
办公地址: 上海 上海市 闵行区
团队规模: 10-50人
注册年份: 2023
年营业收入: 600万元以下
服务点赞数: 0位用户点过赞
项目名称: 保利青岛中央公园LOFT公寓式酒店项目
设计服务类型: 建筑规划及方案设计
设计服务类型子类: 建筑规划设计(平面图、效果图)+ 建筑方案设计(平面图、立面图、剖面图、效果图)
项目类型: LOFT公寓
建筑栋数: ≥2栋
项目状态: 已建设完成
建筑高度是否大于100M: ≤ 100M
建筑结构: 剪力墙结构
项目地点: 山东 青岛 青岛, 山东, 中国, 东亚
设计风格: 现代
项目档次: 精装型(3星级)
项目背景
项目位于青岛,功能为一栋平层公寓,两栋LOFT公寓,以及底层商业。用地面积约20000平米,建筑面积约85000平米。2021年建成并销售,因其LOFT户型很有特色,当日清盘
总体规划效果图
建筑整体采用现代主义风格,并严控成本,用窗墙体系实现幕墙效果
总体规划平面图
项目分南北两个地块,北地块由一栋平层公寓塔楼以及回字形商业组成,南地块由两栋LOFT公寓塔楼以及底层商业组成
塔楼拉开视距,底层天街设计手法,串联商业人流
建筑方案效果图
建筑沿着城市界面造型整洁干净
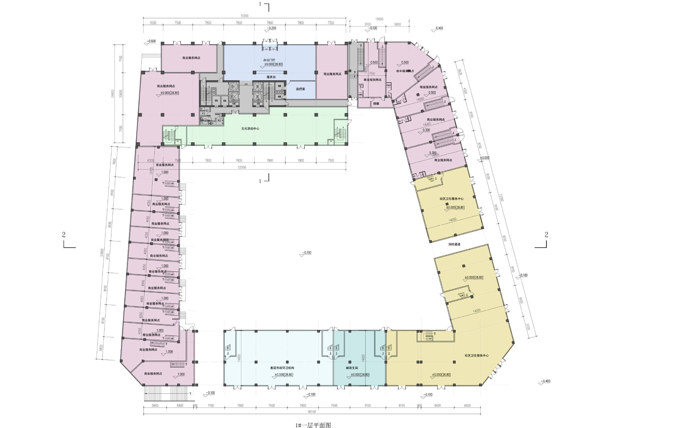
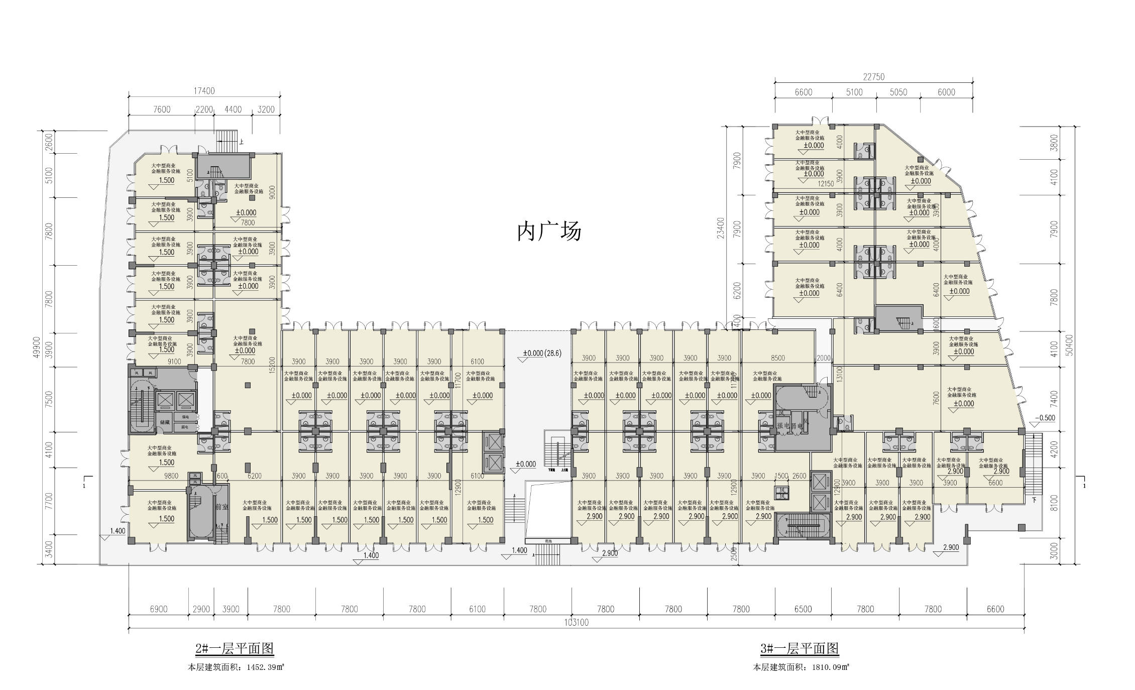
建筑方案平面图
北地块一层
南地块一层
南地块标准层
建筑方案立面图
北立面及南立面
东立面及西立面
建筑方案剖面图
LOFT层高4.7m
以上内容由设计服务商上传
以上内容均由上海邸幔建筑设计有限公司上传
已做版权声明,如需转载请获得版权人的许可
评论
${0} 条评论 ${0} 条评论
暂无评论
发表评论
* 沟通语言(口语):
请尽量勾选您能提供服务的语言,能让您更快获得匹配询盘和商机。
所在地官方推荐语言: 请选择地址 选择项目所在地后,我们将会推荐相应官方语言
其他沟通语言: 常见国际用语您可以直接选择
+ 添加更多 您可添加更多语言
不能为空!

审核未通过的原因:

* 沟通语言(书面):
请尽量勾选您能提供服务的语言,能让您更快获得匹配询盘和商机。
所在地官方推荐语言: 请选择地址 选择项目所在地后,我们将会推荐相应官方语言
其他沟通语言: 常见国际用语您可以直接选择
+ 添加更多 您可添加更多语言
不能为空!

审核未通过的原因:

如果没有您的语言,请联系我们:service@buildmost.com
充值账号:
充值数额:
《素材纠纷提交须知》
不能为空!
支付方式: